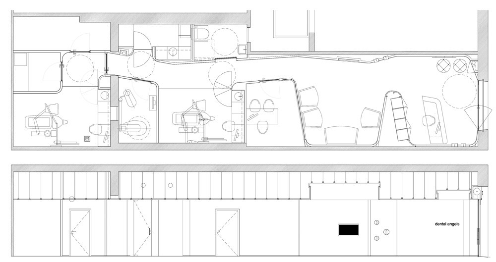
Les concepteurs d’YLAB Arquitectos expliquent leur démarche pour accomplir les missions de design global (image de marque et design d’intérieur) qui leur ont été confiées par un jeune chirurgien-dentiste souhaitant proposer, dans le quartier central de l’Ensanche à Barcelone, un cabinet moderne, fonctionnel, reflétant « le charme et l’agrément suggéré par son nom : Dental Angels ».
« Des distributions organiques ont été proposées, au sein desquelles toutes les fonctions, placées dans un espace continu unique, suggèrent dynamisme et sensation d’espace… Les nuances pâles, les formes courbes et l’éclairage indirect qui traversent toutes les zones transmettent une sensation de calme et d’équilibre, à la fois pour les patients et le personnel médical. »
Les objectifs du projet Dental Angels étaient la réalisation d’« une image singulière, élégante tout en étant accessible, professionnelle et fraîche. Les volumes devaient être spacieux et lumineux, l’ambiance chaleureuse et confortable… Le blanc a été choisi comme couleur de base, puis des accents d’or et de bleu clair ont été ajoutés par des éléments tels que l’image de marque, la signalétique, les modules cylindriques ou la lumière indirecte linéaire à LED RGB. Les matériaux ou les finitions, intemporels, tels que la laque satinée blanche, les panneaux stratifiés du mobilier de la clinique et les revêtements de sols clairs sont combinés avec des surfaces qui ajoutent légèreté et chaleur, comme l’or satiné. »
Architecture et design d’intérieur : YLAB Arquitectos Barcelona (www.ylab.es)
Conception graphique : Oi Communication/SILVIA CIVIT STUDIO
Photos : CIRO FRANK SCHIAPPA
* YLAB Arquitectos Barcelona est un studio de conception architecturale spécialisé dans le design résidentiel, commercial et corporatif.
Conception graphique : Oi Communication/SILVIA CIVIT STUDIO
Photos : CIRO FRANK SCHIAPPA
* YLAB Arquitectos Barcelona est un studio de conception architecturale spécialisé dans le design résidentiel, commercial et corporatif.






Commentaires